• INTERIOR DESIGN
  • HINCMAR
  • BLONDEL
  • LES HIPPOCAMPES
  • LES BRUYÈRES
  • LE BAS JASSON
  • SIMONET
  • HAMAIL
  • FARLÈDE
  • GRAPHIC DESIGN
  • DIAGS & BIODIVERSITÉ
  • BONNET & BAUDET
  • WATER.LO
  • DUSSERT
  • GRÈS D'ARDENNNES
  • CPTS
  • RITUEL
  • C&F
  • LA FRANGINE
  • LE BH
  • CPC
  • JOLIE MÔME
  • M71
  • AGRICYCLAGE
ABOUT
Margaux ETIENNE
interior & graphic designer
  • INTERIOR DESIGN
  • HINCMAR
  • BLONDEL
  • LES HIPPOCAMPES
  • LES BRUYÈRES
  • LE BAS JASSON
  • SIMONET
  • HAMAIL
  • FARLÈDE
  • GRAPHIC DESIGN
  • DIAGS & BIODIVERSITÉ
  • BONNET & BAUDET
  • WATER.LO
  • DUSSERT
  • GRÈS D'ARDENNNES
  • CPTS
  • RITUEL
  • C&F
  • LA FRANGINE
  • LE BH
  • CPC
  • JOLIE MÔME
  • M71
  • AGRICYCLAGE
ABOUT

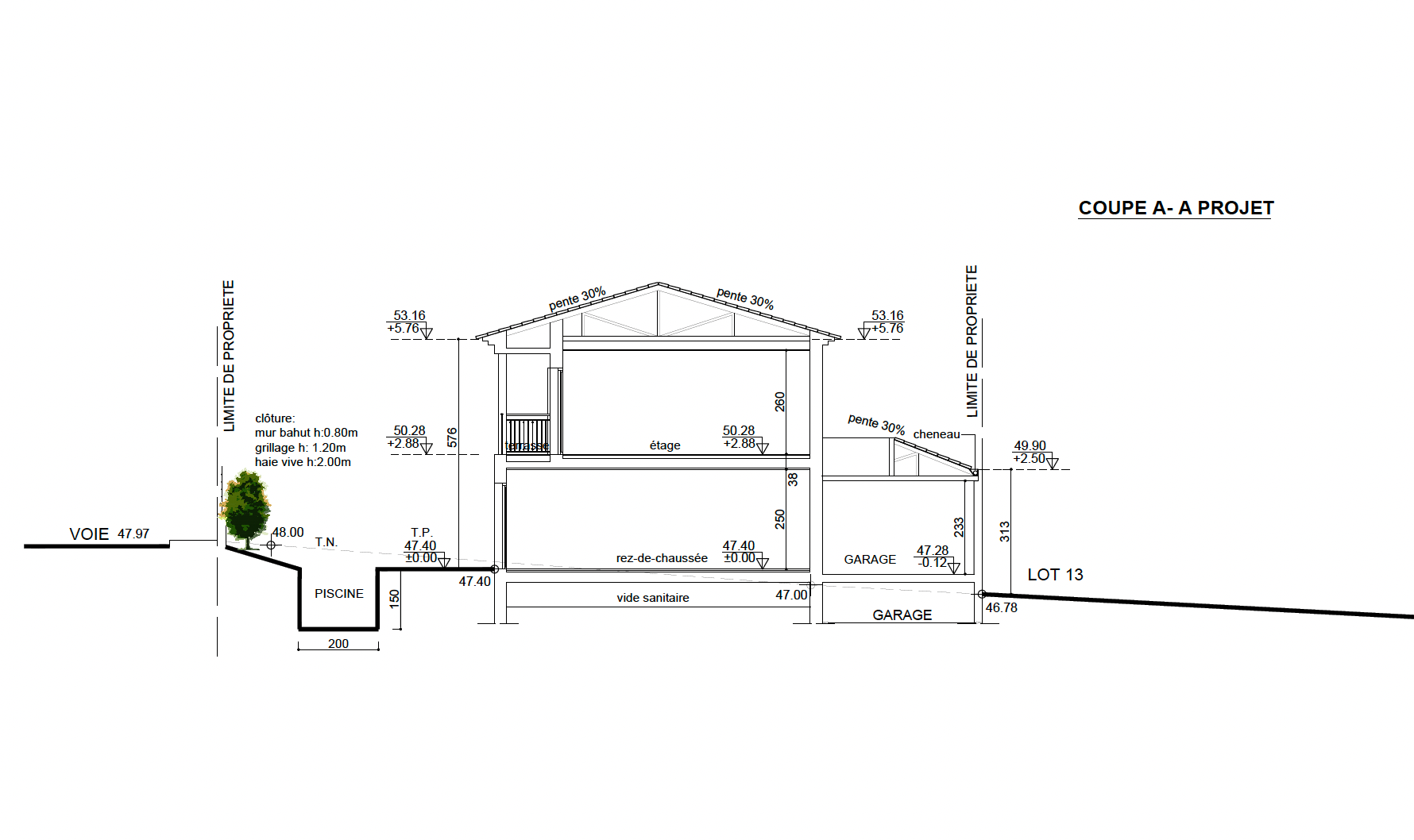
LES HIPPOCAMPES

Réalisation du permis de construire d'une maison individuelle bioclimatique au Pradet (Var).
↑Back to Top